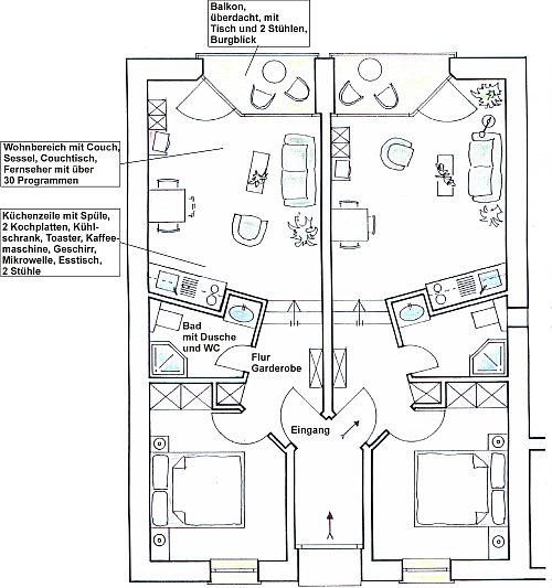
Die Ferienwohnungen 3 und 4 sind gleich ausgestattet mit 1 Wohnzimmer, 1 Schlafzimmer, Balkon, Küchenzeile, Badezimmer.

Befreundete Paare können hier gemeinsam und doch getrennt komfortabel Urlaub machen.

Zurück